AVAILABLE UNITS

All units are currently sold; however, please ask about upcoming availability.

Locust Suite

  • RECENTLY SOLD
  • 2 bed
  • 2 bath
  • Den

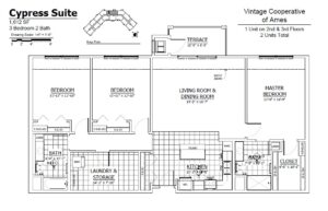
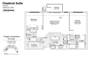
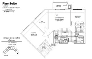
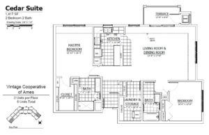
Suites & Floor Plans

Click on one to view the larger image.